Fara í efni
s. 433 1000
Vefir Akraneskaupstaðar
Arnardalur
Bókasafn Akraness
Brekkubæjarskóli
Byggðasafnið í Görðum
Dvalarheimilið Höfði
Grundaskóli
Hérðasskjalasafn Akraness
Leikskólinn Akrasel
Leikskólinn Garðasel
Leikskólinn Teigasel
Leikskólinn Vallarsel
Ljósmyndasafn Akraness
Tónlistarskólinn á Akranesi
Visit Akranes
Þjónusta
Þjónusta
Velferð og fjölskylda
Barnaverndarþjónusta
Félagsþjónusta
Þjónusta við eldra fólk
Þjónusta við fatlaða
Þjónusta við öryrkja
Þjónusta við börn og unglinga
Heimili og húsnæði
Fjöliðjan og Búkolla
Endurhæfingarhúsið Hver
Samvinna eftir skilnað - skilnaðarráðgjöf
Farsæld barna á Akranesi
Barnvænt sveitarfélag
Skóli
Leikskólar
Grunnskólar
Skólaþjónusta
Tónlistarskóli
Forvarnir
Vinnuskóli
Dagforeldrar
Fjölbrautaskóli Vesturlands
Símenntunarmiðstöð Vesturlands
Menntastefna
Námskeið fyrir börn og foreldra
Frístund og íþróttir
Frístundaheimili
Frístundamiðstöðin Þorpið
Tómstundaframlag
Sumarnámskeið
Frístund í vetrarfríi
Íþróttahús
Sundlaugar
Íþrótta- og tómstundafélög
Heilsurækt
Farsælt frístundastarf - verið velkomin
Heilsueflandi samfélag
Um heilsueflandi samfélag
Hreyfistöðvar í Garðalundi
Fréttir og fróðleikur
Hreyfiávísun
Lýðheilsuvísar
Skagamenn umhverfis jörðina
Umhverfi
Sorphirða og endurvinnsla
Flokkum úrgang frá heimilium
Spurningar og svör um Gámu og sorpgjöld
Bláfáninn
Umhverfisverðlaun
Garðar og græn svæði
Náttúruvernd
Dýrahald
Snyrting gróðurs á lóðarmörkum
Hugmyndasamkeppni
Samgöngur og framkvæmdir
Akranesstrætó
Snjómokstur og hálkueyðing
Framkvæmdir
Útboðsverk
Tilkynning um truflun á umferð
Losun á móttökusvæði jarðefna
Afnot af bæjarlandi
Skipulagsmál
Skipulagsfulltrúi
Spurt og svarað um skipulagsmál
Aðalskipulag
Deiliskipulag
Kortavefur og teikningar
Skipulag í kynningu
Helstu skipulagsverkefni
Byggingarmál
Byggingarfulltrúi
Spurt og svarað um byggingarmál
Lausar lóðir
Kortavefur og teikningar
Styrkur til viðhalds fasteigna
Eignaskiptayfirlýsingar
Lóðaleigusamningar
Slökkvilið Akraness og Hvalfjarðarsveitar
Stjórnsýsla
Stjórnsýsla
Stjórnkerfi
Bæjarstjórn Akraness
Bæjarráð
Skipulags- og umhverfisráð
Skóla- og frístundaráð
Velferðar- og mannréttindaráð
Aðrar nefndir
Stjórnskipulag
Bæjarstjóri
Skrifstofa bæjarstjóra
Skipulags- og umhverfissvið
Skóla- og frístundasvið
Stjórnsýslu- og fjármálasvið
Velferðar- og mannréttindasvið
Erindisbréf
Fjármál og rafræn þjónusta
Ársreikningur
Fjárhagsáætlun
Hvað verður um krónurnar okkar?
Íbúagátt Akraness
Álagning fasteignagjalda
Gjaldskrár
Mannauður
Starfsmannahandbók
Starfsmenn
Laus störf
Stofnanir og opnunartímar
Starfsáætlun Akraneskaupstaðar
Fundargerðir
Fundarboð
Bæjarstjórn Akraness
Bæjarráð Akraness
Skipulags- og umhverfisráð
Skóla- og frístundaráð
Velferðar- og mannréttindaráð
Eyðublöð
Félagsþjónusta
Byggingarmál
Umhverfi og skipulag
Skóli og frístund
Styrkir og mannauðsmál
Reglur og samþykktir
Mannauðsmál
Menningar- og safnamál
Skipulags- og umhverfissvið
Skóla- og frístundasvið
Stjórnsýslu- og fjármálasvið
Velferðar- og mannréttindasvið
Útgefið efni
Stefnur Akraneskaupstaðar
Skipulag og umhverfi
Skólar, frístund og íþróttir
Velferð og fjölskylda
Mannlíf
Mannlíf
Menningarstofnanir
Byggðasafnið í Görðum
Bókasafn Akraness
Héraðsskjalasafn
Ljósmyndasafn
Tónlistarskólinn
Bíóhöllin á Akranesi
Hátíðir og viðburðir
Írskir dagar
Menningarhátíðin Vökudagar
Þjóðhátíðardagurinn
Sjómannadagurinn
Norðurálsmótið
Viðburðadagatal
Myndasafn
Hreyfing og útivist
Guðlaug
Akranesviti
Garður og græn svæði
Sundlaugar á Akranesi
Sjóbaðsfélag Akraness
Göngu- og hjólaleiðir
Ratleikur um Akranes
Fjörurnar okkar
Garðalundur skógrækt
Viðurkenningar
Bæjarlistamaður Akraness
Menningarverðlaun
Heiðursborgarar Akraness
Fjallkonur
Íþróttamanneskja Akraness
Umhverfisviðurkenningar
Menning og listir
Útilistaverk
Vinabæir Akraness
Listaverkaeign
Kalman tónlistarfélag Akraness
Listfélag Akraness
Kórastarf á Akranesi
Vitinn - Félag áhugaljósmyndara á Akranesi
Ferðaþjónusta
Tourist Information
Tjaldsvæðið á Akranesi
Visit Akranes
Þjónustugátt
Leita
Mannlíf
/
Hátíðir og viðburðir
/
Myndasafn
/
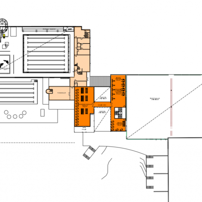
Hugsanleg framtíðarsýn Jaðarsbakkasvæðis
Hugsanleg framtíðarsýn Jaðarsbakkasvæðis
Hugmyndarvinna starfshóps um uppbyggingu Jaðarsbakkasvæðis um hugsanlega framtíðarsýn svæðisins.
Deildu á Facebook
Líkar þetta
Hátíðir og viðburðir
Írskir dagar
Menningarhátíðin Vökudagar
Þjóðhátíðardagurinn
Sjómannadagurinn
Norðurálsmótið
Viðburðadagatal
Myndasafn
Fannst þér efnið á síðunni hjálplegt?
Já
Nei
Ástæða
Efnið svarar ekki spurningunni
Síðan inniheldur rangar upplýsingar
Það er of mikið efni á síðunni
Ég skil ekki efnið, finnst það of flókið
Eitthvað annað sem þú vilt koma á framfæri?
Hætta við
Senda álit
Forsíða
Stjórnsýsla
Mannlíf
Veftré
English
Akranes
The residents' portal of Akranes
Welfare and family
Social services
Child protection
School and leisure activities
Day parents
Kindergartens
Primary schools
Leisure activities
Secondary school
Akranes music school
The municipal work school
The centre for continuous education in the west of Iceland
Sports and leisure activities
Sports facilities
Swimming pools
Sports and leisure clubs
Outdoor activities
Þorpið leisure center
Leisure activity grant
Transportation
Transportation
Cultural activities and museums
Cultural activities and museums
Environmental concerns and nature conservation
Environmental concerns and nature conservation
Parks and green areas
Nature conservation
Polski
Akranes
Portal mieszkańców Akranes
Opieka społeczna i rodzina
Usługi socjalne
Ochrona dzieci
Szkolnictwo i rekreacja
Opieka dzienna
Przedszkola
Szkoły podstawowe
Rekreacja
Szkoła średnia
Szkoła muzyczna w Akranes
Gminna szkoła praktyczna
Centrum kształcenia ustawicznego islandii zachodniej
Sport i wypoczynek
Obiekty sportowe
Baseny
Kluby sportowe i rekreacyjne
Fitness
Centrum rekreacji Þorpið
Dotacja na zajęcia rekreacyjne
Transport
Transport
Kultura i muzea
Kultura i muzea
Kwestie środowiskowe i troska o przyrodę
Kwestie środowiskowe i troska o przyrodę
Parki i tereny zielone
Ochrona przyrody
Gjaldskrár
OKKAR AKRANES
Þjónusta
Velferð og fjölskylda
Barnaverndarþjónusta
Félagsþjónusta
Þjónusta við eldra fólk
Þjónusta við fatlaða
Þjónusta við öryrkja
Þjónusta við börn og unglinga
Heimili og húsnæði
Fjöliðjan og Búkolla
Endurhæfingarhúsið Hver
Samvinna eftir skilnað - skilnaðarráðgjöf
Farsæld barna á Akranesi
Act No 86/2021 on the Integration of Services in the Interest of Children’s Prosperity
Barnvænt sveitarfélag
Skóli
Leikskólar
Grunnskólar
Skólaþjónusta
Tónlistarskóli
Forvarnir
Vinnuskóli
Dagforeldrar
Fjölbrautaskóli Vesturlands
Símenntunarmiðstöð Vesturlands
Menntastefna
Námskeið fyrir börn og foreldra
Frístund og íþróttir
Frístundaheimili
Frístundamiðstöðin Þorpið
Tómstundaframlag
Sumarnámskeið
Frístund í vetrarfríi
Íþróttahús
Sundlaugar
Íþrótta- og tómstundafélög
Heilsurækt
Farsælt frístundastarf - verið velkomin
Heilsueflandi samfélag
Um heilsueflandi samfélag
Hreyfistöðvar í Garðalundi
Fréttir og fróðleikur
Hreyfiávísun
Lýðheilsuvísar
Skagamenn umhverfis jörðina
Umhverfi
Sorphirða og endurvinnsla
Flokkum úrgang frá heimilium
Spurningar og svör um Gámu og sorpgjöld
Bláfáninn
Umhverfisverðlaun
Garðar og græn svæði
Náttúruvernd
Dýrahald
Snyrting gróðurs á lóðarmörkum
Hugmyndasamkeppni
Samgöngur og framkvæmdir
Akranesstrætó
Snjómokstur og hálkueyðing
Framkvæmdir
Útboðsverk
Tilkynning um truflun á umferð
Losun á móttökusvæði jarðefna
Afnot af bæjarlandi
Skipulagsmál
Skipulagsfulltrúi
Spurt og svarað um skipulagsmál
Aðalskipulag
Deiliskipulag
Kortavefur og teikningar
Skipulag í kynningu
Helstu skipulagsverkefni
Uppbygging á Jaðarsbökkum
Allar fréttir um Jaðarsbakka
Spurt og svarað um viljayfirlýsingu
Byggingarmál
Byggingarfulltrúi
Spurt og svarað um byggingarmál
Lausar lóðir
Kortavefur og teikningar
Styrkur til viðhalds fasteigna
Eignaskiptayfirlýsingar
Lóðaleigusamningar
Slökkvilið Akraness og Hvalfjarðarsveitar
Stjórnsýsla
Stjórnkerfi
Bæjarstjórn Akraness
Bæjarráð
Skipulags- og umhverfisráð
Skóla- og frístundaráð
Velferðar- og mannréttindaráð
Aðrar nefndir
Stjórnskipulag
Bæjarstjóri
Skrifstofa bæjarstjóra
Skipulags- og umhverfissvið
Skóla- og frístundasvið
Stjórnsýslu- og fjármálasvið
Velferðar- og mannréttindasvið
Erindisbréf
Fjármál og rafræn þjónusta
Ársreikningur
Fjárhagsáætlun
Hvað verður um krónurnar okkar?
Íbúagátt Akraness
Álagning fasteignagjalda
Gjaldskrár
Mannauður
Starfsmannahandbók
Starfsmenn
Laus störf
Stofnanir og opnunartímar
Starfsáætlun Akraneskaupstaðar
Fundargerðir
Fundarboð
Bæjarstjórn Akraness
Bæjarráð Akraness
Skipulags- og umhverfisráð
Skóla- og frístundaráð
Velferðar- og mannréttindaráð
Eyðublöð
Félagsþjónusta
Byggingarmál
Umhverfi og skipulag
Skóli og frístund
Styrkir og mannauðsmál
Reglur og samþykktir
Mannauðsmál
Menningar- og safnamál
Skipulags- og umhverfissvið
Skóla- og frístundasvið
Stjórnsýslu- og fjármálasvið
Velferðar- og mannréttindasvið
Útgefið efni
Stefnur Akraneskaupstaðar
Skipulag og umhverfi
Skólar, frístund og íþróttir
Velferð og fjölskylda
Mannlíf
Menningarstofnanir
Byggðasafnið í Görðum
Bókasafn Akraness
Héraðsskjalasafn
Ljósmyndasafn
Tónlistarskólinn
Bíóhöllin á Akranesi
Hátíðir og viðburðir
Írskir dagar
Menningarhátíðin Vökudagar
Þjóðhátíðardagurinn
Sjómannadagurinn
Norðurálsmótið
Viðburðadagatal
Myndasafn
Hreyfing og útivist
Guðlaug
Akranesviti
Garður og græn svæði
Sundlaugar á Akranesi
Sjóbaðsfélag Akraness
Göngu- og hjólaleiðir
Ratleikur um Akranes
Fjörurnar okkar
Garðalundur skógrækt
Viðurkenningar
Bæjarlistamaður Akraness
Menningarverðlaun
Heiðursborgarar Akraness
Fjallkonur
Íþróttamanneskja Akraness
Umhverfisviðurkenningar
Menning og listir
Útilistaverk
Vinabæir Akraness
Listaverkaeign
Kalman tónlistarfélag Akraness
Listfélag Akraness
Kórastarf á Akranesi
Vitinn - Félag áhugaljósmyndara á Akranesi
Ferðaþjónusta
Tourist Information
Tjaldsvæðið á Akranesi
Visit Akranes
Fara efst
á síðu
Venjulegt útlit
Breyta stillingum